Afin de faciliter votre navigation et de disposer de services et d'offres adaptés à vos centres d'intérêts, nous utilisons des cookies et nous assurons la protection de vos données.
Vous pouvez refuser tout ou partie des cookies en cliquant sur le bouton "Personnaliser les cookies".
A tout moment vous pourrez modifier vos choix en cliquant sur le lien "Personnaliser les cookies" situé en bas de page.

Continuer sans accepter

Personnaliser les cookies Accepter les cookies
Mes annonces
Mes Favoris
Mon compte
magnified image

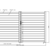
Portail aluminium battant 4m x H. 2m Gris Anthracite - MILDURA

samedi 3 janvier 2026 16:20
744,80 €
Showroom Meaux S.
Meaux (77100)
  Contacter le vendeur Showroom Meaux Showroom Meaux ×
Comment souhaitez-vous que le vendeur vous recontacte ?
Par e-mail
Par numéro de téléphone

Description


Grosse rayure sur un battant Possibilité de le voir au Showroom


Portail aluminium battant 4m x H. 2m Gris Anthracite - MILDURA

Matière : Aluminium
Ouverture double battants | Motorisable
Hauteur du portail : 200 cm
Couleur Gris Anthracite

Ouvert du lundi au vendredi
10h00 à 12h30 et de 13h30 à 18h30
le samedi 10h à 12h30 et de 13h30 à 18h30

Critères

Catégorie : Portail et portillon

État : Bon état

Localisation

;